+ Our Projects
We believe in a sustainable world. We offer comprehensive services in Urban Design and Landscaping, Residential Design, Interior Design & Renovations, Commercial Spaces, Building Information Modeling, and Environmental Certifications, ensuring sustainable and innovative solutions tailored to each project’s unique needs.
Vivero Parque Residencial
Urban project in the south of Santiago de Cali that includes 8,961 housing units and 198,000 m² of public space, with a focus on sustainability, green areas, community interaction and modern infrastructure for a more habitable future.
Achieving the first certification for LEED for Cities and Communities Plan and Design, V4.1 in Latin America, GOLD level.
Winning project of the USGBC leadership Award for Latin America in the year 2021. Distinction that recognizes those whose vision, leadership and commitment have been fundamental for the evolution of our industry in sustainable construction.
Status: Under Construction










ASODISVALLE
Jeison Aristizabal Foundation
ASODISVALLE Foundation of Jeison Aristizábal, winner of the CNN HERO 2016 award, located in the city of Candelaria – Valle del Cauca, where more than 500 young people with limited resources and disabilities are served in a 2,500 m2 building designed with the highest sustainability standards, which has EDGE certification.
Status: In Coordination












Plaza Madero Mall
This modern shopping centre is spread over a 3,500 m² lot, housing 40 commercial premises of 20 m² each. With an innovative and unprecedented architectural proposal in the sector, the design ensures that each premises has attractive facades that enrich the visual experience of the space. In addition, special attention has been paid to climate comfort, guaranteeing a pleasant environment for customers and merchants. This project not only stands out for its aesthetics and functionality, but also has the EDGE certification, underlining its commitment to sustainable and responsible construction practices.
Status: Completed




Moka
Multi-family building that houses 80 luxurious residential units, each of 120 m², situated on a large 10,000 m² lot. This project has EDGE certification, standing out for its innovative sustainable architecture strategies, focused on optimizing the use of water, energy and materials.
Status: In Coordination












Parque Natura
Urban project in the south of Santiago de Cali that includes 8,961 housing units and 198,000 m² of public space, with a focus on sustainability, green areas, community interaction and modern infrastructure for a more habitable future.
Achieving the first certification for LEED for Cities and Communities Plan and Design, V4.1 in Latin America, GOLD level.
Winning project of the USGBC leadership Award for Latin America in the year 2021. Distinction that recognizes those whose vision, leadership and commitment have been fundamental for the evolution of our industry in sustainable construction.
Status: Under Construction









Quintas del Paraiso
Co-designed by the world-renowned architect James Smith, our Bridgewater Joy residences offer top views of the nearby lake Michigan. Perfect for a small family, a professional couple, or anyone looking to set up a home office.
Status: Under Construction




Universidad del Valle
Urban project in the south of Santiago de Cali that includes 8,961 housing units and 198,000 m² of public space, with a focus on sustainability, green areas, community interaction and modern infrastructure for a more habitable future.
Achieving the first certification for LEED for Cities and Communities Plan and Design, V4.1 in Latin America, GOLD level.
Winning project of the USGBC leadership Award for Latin America in the year 2021. Distinction that recognizes those whose vision, leadership and commitment have been fundamental for the evolution of our industry in sustainable construction.
Status: Under Construction




















+ Signage design
We believe in a sustainable world. We offer comprehensive services in Urban Design and Landscaping, Residential Design, Interior Design & Renovations, Commercial Spaces, Building Information Modeling, and Environmental Certifications, ensuring sustainable and innovative solutions tailored to each project’s unique needs.
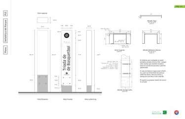
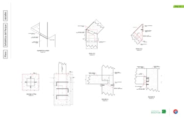
Signaling System Urban Project Parque Natura
Urban project in the south of Santiago de Cali that includes 8,961 housing units and 198,000 m² of public space, with a focus on sustainability, green areas, community interaction and modern infrastructure for a more habitable future.
Achieving the first certification for LEED for Cities and Communities Plan and Design, V4.1 in Latin America, GOLD level.
Winning project of the USGBC leadership Award for Latin America in the year 2021. Distinction that recognizes those whose vision, leadership and commitment have been fundamental for the evolution of our industry in sustainable construction.
Status: Under Construction


























Signaling System Urban Project Vivero Parque Residencial
Multi-family building that houses 80 luxurious residential units, each of 120 m², situated on a large 10,000 m² lot. This project has EDGE certification, standing out for its innovative sustainable architecture strategies, focused on optimizing the use of water, energy and materials.
Status: In Coordination




























